103 Palm CircleHavelock, NC 28532




Mortgage Calculator
Monthly Payment (Est.)
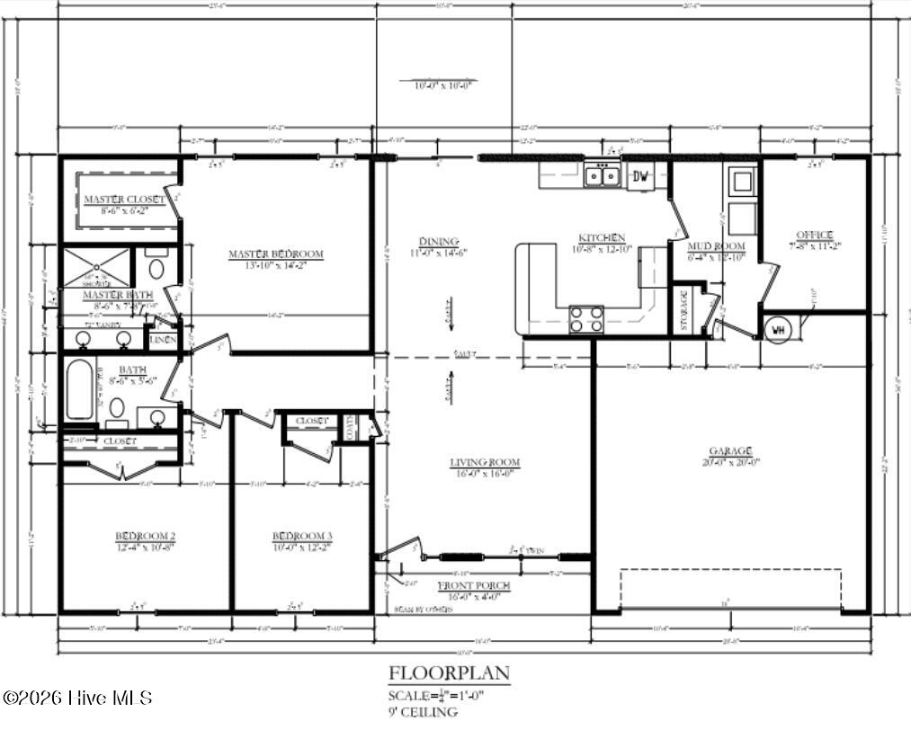
$1,450Welcome to Neuse Point East, a wooded waterfront community where everyday living feels just a little more elevated. Surrounded by natural beauty and river access, this is the kind of setting that makes coming home the best part of your day. The Southport Access Floor Plan offers 3 bedrooms and 2 bathrooms in a thoughtfully designed open layout with vaulted ceilings that add volume and character to the main living space. The living room flows seamlessly into the kitchen and dining area, creating a natural gathering space that feels open, functional, and inviting. Built with the same structural integrity as Premiere Homes, the Access series emphasizes strength, smart design, and lasting quality. You'll find dependable craftsmanship and intentional design choices that focus on what truly matters -- delivering value without compromising construction standards. Outside, enjoy wooded homesites, river breezes, and the freedom of a no-HOA community. Whether you're hosting friends, relaxing on the porch, or simply enjoying the surroundings, this home offers the perfect blend of comfort, value, and lifestyle. Builder is offering $5,000 to use as you choose.
| 2 months ago | Listing updated with changes from the MLS® | |
| 2 months ago | Status changed to Pending | |
| 3 months ago | Listing first seen on site |
The data relating to real estate on this website comes in part from the Internet Data Exchange program of Hive MLS, and is updated as of 2026-05-05 03:49 AM UTC. All information is deemed reliable but not guaranteed and should be independently verified. All properties are subject to prior sale, change, or withdrawal. Neither listing broker(s) shall be responsible for any typographical errors, misinformation, or misprints, and shall be held totally harmless from any damages arising from reliance upon these data. Copyright 2026 Hive MLS

Did you know? You can invite friends and family to your search. They can join your search, rate and discuss listings with you.