Save
Ask
Tour
Hide
$747,900
385 Days On Site
328 Lookout PointHampstead, NC 28443
For Sale|Single Family Residence|Active
3
Beds
3
Total Baths
2
Full Baths
1
Partial Bath
2,347
SqFt
$319
/SqFt
2025
Built
Subdivision:
East Wynd
County:
Pender

Save
Ask
Tour
Hide
Mortgage Calculator
Monthly Payment (Est.)
$3,412Calculator powered by Showcase IDX, a Constellation1 Company. Copyright ©2025 Information is deemed reliable but not guaranteed.
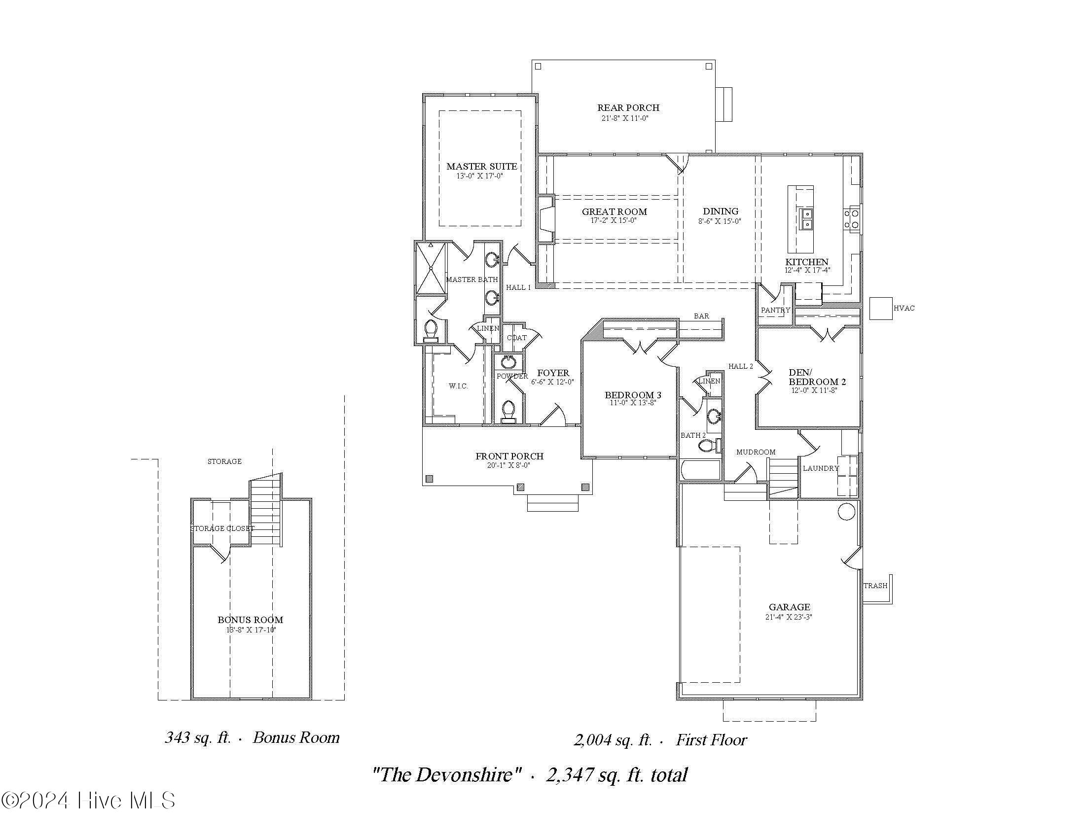
The DEVONSHIRE by Charter Building Group. This is a split floor plan with 3 bedrooms and 2 1/2 baths with a Bonus Room. Open living area with access to a large screened in porch. EAST WYND is a WATERFRONT community with a beautiful Intracoastal front day dock and friendly vibes. Charter Building Group homes feature modern interior finishes, oversized windows, quality craftsmanship and spacious outdoor living spaces. THIS IS A PROPOSED CONSTRUCTION HOME
Save
Ask
Tour
Hide
Listing Snapshot
Price
$747,900
Days On Site
385 Days
Bedrooms
3
Inside Area (SqFt)
2,347 sqft
Total Baths
3
Full Baths
2
Partial Baths
1
Lot Size
0.28 Acres
Year Built
2025
MLS® Number
100474775
Status
Active
Property Tax
N/A
HOA/Condo/Coop Fees
$100 monthly
Sq Ft Source
N/A
Friends & Family
Recent Activity
| a year ago | Listing updated with changes from the MLS® | |
| a year ago | Status changed to Active | |
| a year ago | Listing first seen on site |
General Features
Acres
0.28
Foundation
RaisedSlab
Garage
Yes
Garage Spaces
2
Levels
One
Number Of Stories
1
Parking
ConcreteOff Street
Parking Spaces
2
Property Condition
New Construction
Property Sub Type
Single Family Residence
Security
Smoke Detector(s)
Sewer
Public Sewer
Special Circumstances
Standard
SqFt Total
2347
Utilities
Sewer AvailableWater Available
Water Source
Public
Zoning
PD
Interior Features
Appliances
Vented Exhaust FanGas CooktopElectric OvenDisposalDishwasher
Cooling
Ceiling Fan(s)Central AirZoned
Fireplace
Yes
Fireplace Features
Gas Log
Flooring
CarpetLaminateTileWood
Heating
ElectricForced AirHeat PumpZoned
Interior
Entrance FoyerMaster DownstairsWalk-In Closet(s)Tray Ceiling(s)High CeilingsBookcasesKitchen IslandCeiling Fan(s)Pantry
Window Features
Insulated Windows
Bedroom 2
Dimensions - 12.00x11.50Level - First
Bedroom 3
Dimensions - 11.00x13.50Level - First
Bonus Room
Dimensions - 17.50x13.50Level - Second
Dining Room
Dimensions - 15.00x8.50Level - First
Great Room
Dimensions - 15.00x17.00Level - First
Kitchen
Dimensions - 17.00x12.50Level - First
Laundry
Dimensions - 8.00x7.00Level - First
Master Bedroom
Dimensions - 17.00x13.00Level - First
Save
Ask
Tour
Hide
Exterior Features
Construction Details
ConcreteBrickFiber Cement
Fencing
None
Patio And Porch
CoveredPorchScreened
Road Frontage
Private Road
Windows/Doors
Insulated Windows
Community Features
Association Amenities
Management
Association Dues
1200
Financing Terms Available
CashConventionalVA Loan
HOA Fee Frequency
Annually
Roads
Paved
Schools
School District
Unknown
Elementary School
North Topsail
Middle School
Surf City
High School
Topsail
Listing courtesy of Patrick H Kelly of Coldwell Banker Sea Coast Advantage
The data relating to real estate on this website comes in part from the Internet Data Exchange program of North Carolina Regional MLS LLC, and is updated as of 2025-11-27 12:01 AM UTC. All information is deemed reliable but not guaranteed and should be independently verified. All properties are subject to prior sale, change, or withdrawal. Neither listing broker(s) nor eXp Realty llc shall be responsible for any typographical errors, misinformation, or misprints, and shall be held totally harmless from any damages arising from reliance upon these data. Copyright 2025 North Carolina Regional MLS LLC
The data relating to real estate on this website comes in part from the Internet Data Exchange program of North Carolina Regional MLS LLC, and is updated as of 2025-11-27 12:01 AM UTC. All information is deemed reliable but not guaranteed and should be independently verified. All properties are subject to prior sale, change, or withdrawal. Neither listing broker(s) nor eXp Realty llc shall be responsible for any typographical errors, misinformation, or misprints, and shall be held totally harmless from any damages arising from reliance upon these data. Copyright 2025 North Carolina Regional MLS LLC
Neighborhood & Commute
Source: Walkscore
Disclosure: Community information and market data powered by Constellation Data Labs. Information is deemed reliable but not guaranteed.
Save
Ask
Tour
Hide

Did you know? You can invite friends and family to your search. They can join your search, rate and discuss listings with you.