275 W Us 70 Highway WHavelock, NC 28532




Mortgage Calculator
Monthly Payment (Est.)
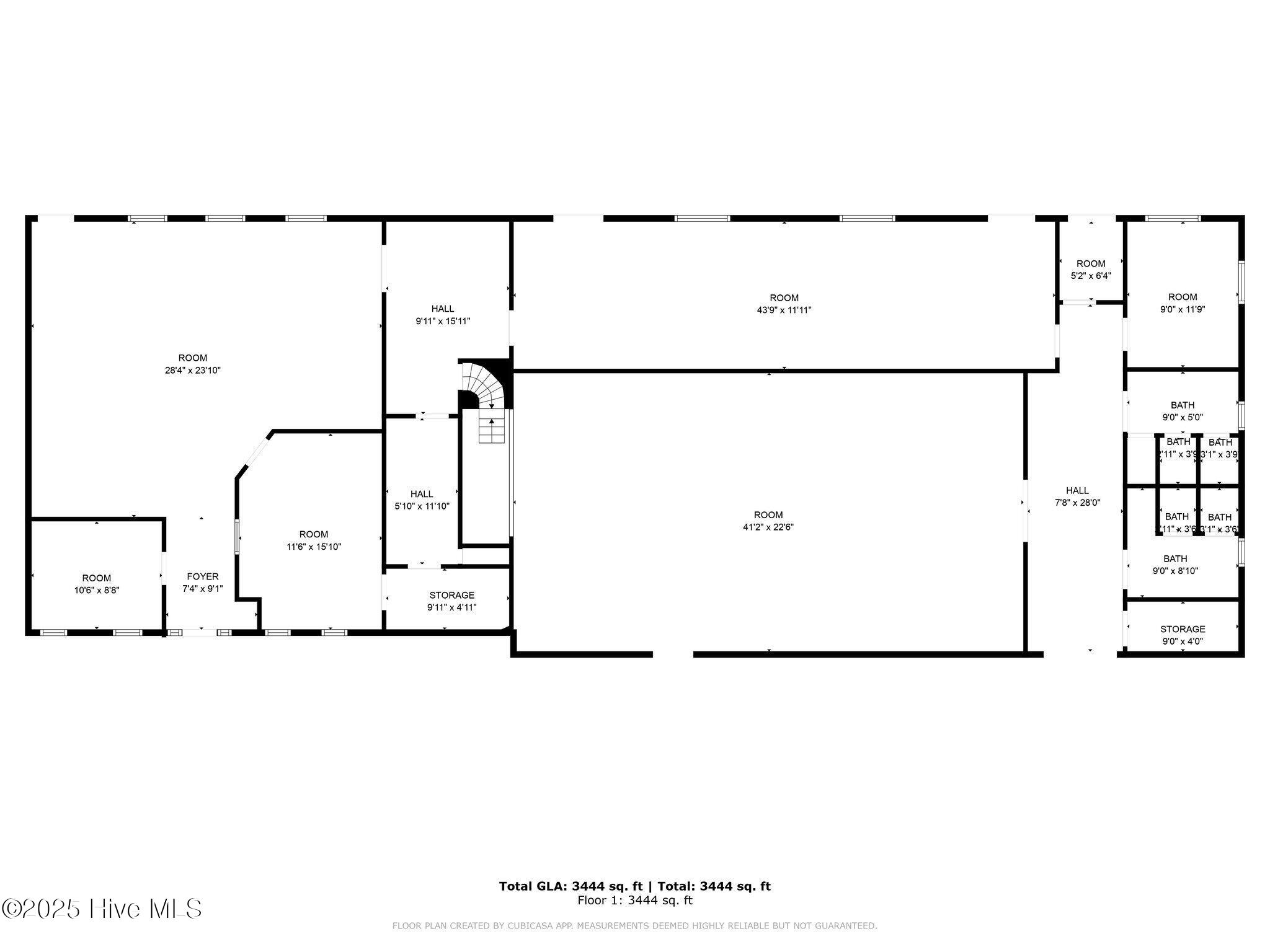
$2,053This is a great opportunity to begin and develop your next business adventure. The commercial industry, in this part of town, is growing rapidly. According to the NCDOT the average daily traffic count is roughly 26,500. That's great exposure! The lot size is just under an acre (.82) giving you plenty of room for parking, landscaping and either expanding the current building or starting from a fresh canvas. Speaking of the current building, it is over 3,000 square feet, has great bones and could really be renovated into something nice. There are two separate bathrooms, each with two stalls. The latest use for this building was a church. It would be perfect for another renovated church, office building, medical center, day care and so much more. Conveniently located off a service road that flows directly onto Highway 70 West! Don't miss your opportunity for your next career move!
| 2 months ago | Price changed to $450,000 | |
| 2 months ago | Listing updated with changes from the MLS® | |
| 4 months ago | Status changed to Active | |
| 5 months ago | Listing first seen on site |
The data relating to real estate on this website comes in part from the Internet Data Exchange program of North Carolina Regional MLS LLC, and is updated as of 2025-12-04 11:01 AM UTC. All information is deemed reliable but not guaranteed and should be independently verified. All properties are subject to prior sale, change, or withdrawal. Neither listing broker(s) nor eXp Realty llc shall be responsible for any typographical errors, misinformation, or misprints, and shall be held totally harmless from any damages arising from reliance upon these data. Copyright 2025 North Carolina Regional MLS LLC

Did you know? You can invite friends and family to your search. They can join your search, rate and discuss listings with you.