129 Tiffany WayBeaufort, NC 28516



Mortgage Calculator
Monthly Payment (Est.)
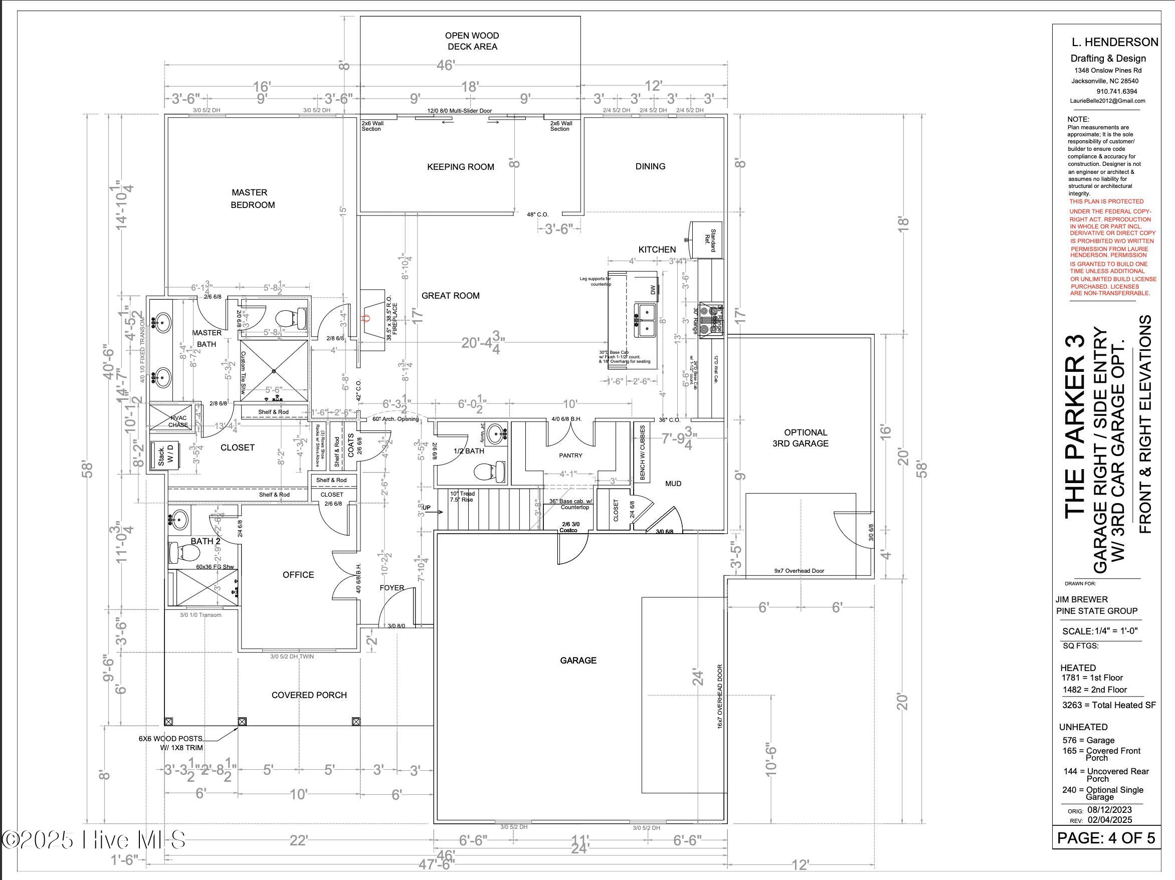
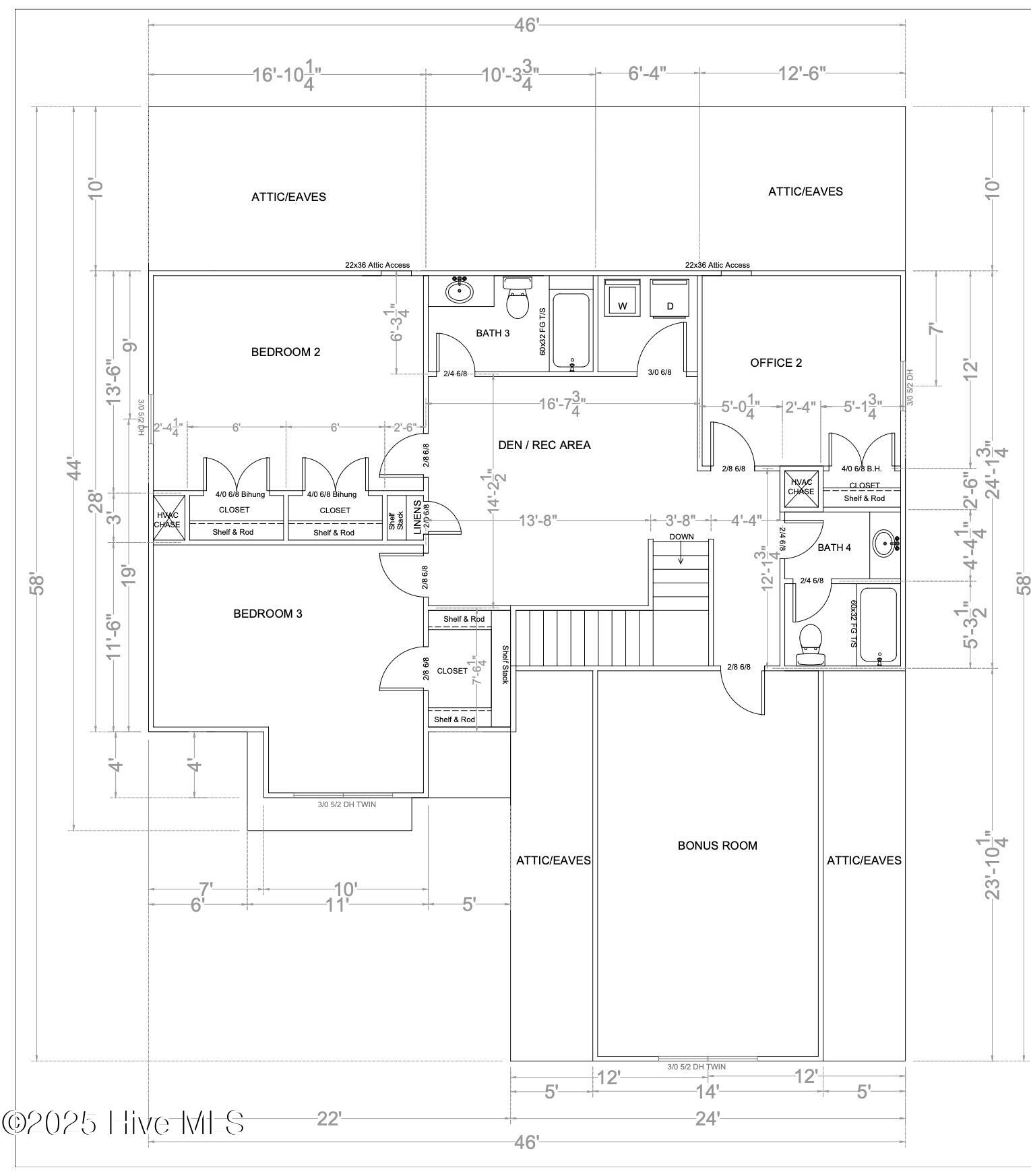
$3,422Luxury Living Meets Coastal Charm in Beaufort. Imagine mornings with the salt air drifting in and evenings spent just minutes from the waterfront—all from the comfort of your brand-new home in Tiffany Woods. Currently under construction by Pine State Construction Group Coastal, the Parker 3 Plan offers over 3,200 square feet of thoughtfully designed space where everyday living feels like a getaway. On the main level, retreat to your private owner's suite, a serene escape with a spa-inspired bath. A versatile guest suite or office provides the perfect space to welcome visitors or work from home. The open-concept kitchen, dining, and living areas create the heart of the home, where gatherings flow seamlessly indoors and out. Upstairs, you'll find two additional bedrooms, fitness, bonus and rec room each designed with comfort and space in mind—perfect for family, guests, or a quiet retreat after a day on the water. Crafted with exceptional quality and premium finishes, every detail reflects the craftsmanship and style Pine State is known for. Set in the charming Tiffany Woods subdivision, this home places you close to historic Beaufort's shops and dining, marinas, and the pristine beaches of the Crystal Coast. More than a house, the Parker 3 is your gateway to the coastal lifestyle you've been dreaming of.
| 2 months ago | Listing updated with changes from the MLS® | |
| 2 months ago | Status changed to Pending | |
| 3 months ago | Listing first seen on site |
The data relating to real estate on this website comes in part from the Internet Data Exchange program of North Carolina Regional MLS LLC, and is updated as of 2025-11-27 05:15 AM UTC. All information is deemed reliable but not guaranteed and should be independently verified. All properties are subject to prior sale, change, or withdrawal. Neither listing broker(s) nor eXp Realty llc shall be responsible for any typographical errors, misinformation, or misprints, and shall be held totally harmless from any damages arising from reliance upon these data. Copyright 2025 North Carolina Regional MLS LLC

Did you know? You can invite friends and family to your search. They can join your search, rate and discuss listings with you.